Opere ferroviarie - INGESCA

Vai ai contenuti

Menu principale:

Opere ferroviarie

La Nostra Storia > Progetti ITALIA 2000-2011
 
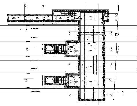
  • Nodo di Napoli – Stazione di S. Giovanni Barra
    Luogo : città di Napoli
    Anno : 2004 ® 2007
    Committente : Baldassini Tognozzi s.p.a.
    Ente Approvante : ITALFERR
    Descrizione : sottopasso di stazione per la nuova fermata di S. Giovanni Barra (Napoli), nell'ambito del progetto di "Penetrazione Urbana nel nodo di Napoli della linea A.V. Milano Napoli".
 
 
 
 
 
Torna ai contenuti | Torna al menu